Глава 3. Основы проектирования в САПР Fusion 360
Разработка манипуляционного робота начинается с проектирования элементов его конструкции. А этим наиболее удобно заниматься в специализированных системах автоматизированного проектирования (САПР). Поэтому, в первую очередь, необходимо ознакомиться с одной из распространенных систем САПР. В качестве осваиваемой в рамках данного курса САПР рекомендуется выбрать Autodesk Fusion 360, поскольку он имеет довольно простой интерфейс, легок в освоении, а также распространяется бесплатно по студенческой лицензии. Однако, также допустимо использование Autodesk Inventor. Все программы для 3D проектирования имеют схожий интерфейс, а логика создания 3D моделей везде схожая. Создание моделей в рамках данного учебного пособия будет вестись в Fusion 360. Следует обратить внимание, что работа во Fusion 360 основана на сохранении моделей в облачном хранилище, и по умолчанию, все модели сохраняются в так называемые проекты, относящиеся к конкретному аккаунту. Способ сохранения модели в файл на жестком диске будет показан позже.
Интерфейс среды Fusion 360
Прежде всего, необходимо разобрать интерфейс программы Autodesk Fusion 360, а также ее основные функциональные возможности, которые пригодятся в последующей работе.
После запуска программы появляется следующее окно (Рис. 3.1):

Рис. 3.1. Интерфейс среды Fusion 360
Интерфейс среды Fusion 360 разделен на следующие области:
Рабочая область
Занимает всю центральную часть окна. В рабочей области отображается разрабатываемая модель. Формат этой области можно менять, например, разделяя ее на несколько окон, в которых можно одновременно просматривать модель под разными углами. Это можно сделать с помощью следующей панели.
Панель изменения параметров отображения

Панель расположена по центру в нижней части экрана. В ней можно менять параметры просмотра модели. Переключение между режимами просмотра осуществляется с помощью последней кнопки.
Панель истории создания модели

В панели истории создания модели последовательно отображаются все операции и действия, при помощи которых создавалась модель. Перетягивая ползунок, можно «откатывать» модель назад, а щелкая ПКМ по различным операциям, можно редактировать их, а также скрывать и удалять.

Однако, если удалить какую-либо операцию, возможен случай, когда все последующие операции, которые опираются на эту, будут выдавать ошибку.
Обзорная панель

В обзорной панели отображаются все основные элементы создаваемой модели – эскизы и получаемые из них объемные тела.
Например, уже у созданной модели эта панель может выглядеть следующим образом:
Файловая панель

С помощью файловой панели элементов можно открывать уже существующие файлы, создавать новые, а также сохранять созданные.
При нажатии кнопки «Дискетка» модель будет сохранена в облачное хранилище. Чтобы сохранить модель на жесткий диск, необходимо сделать следующее:
Открыть вкладку «Файл» и из открывшегося списка действий выбрать «Export».
В открывшемся окне выбрать имя сохраняемого файла и директорию сохранения (нажав на кнопку «…» в разделе Location).

Панель вкладок

На панели вкладок отображаются все открытые в данный момент файлы. Между файлами на панели можно переключаться.
Основная рабочая панель

На основной рабочей панели отображаются:
А. Среда создания изделия
В последующей работе потребуется команда MODEL, однако, в Fusion 360 имеются и другие интересные режимы создания изделий и моделей.

Б. Панель команд для создания модели

Панель команд разделена на несколько вкладок, таких как: SKETCH, CREATE, MODIFY, ASSEMBLE и т.д. С помощью команд в этих вкладках можно управлять созданием модели на различных этапах. Чтобы открыть полный список команд, нужно нажать на название соответствующей панели. Также можно выносить некоторые часто используемые команды в быстрый доступ.

Например, вынесем команду создания нового эскиза (Create sketch) в быстрый доступ. Для этого откроем вкладку SKETCH.
В появившемся списке найдем команду
«Create Sketch», и, наведя на нее курсор, нажмем «…». В появившемся окне необходимо поставить галочку в первой строке. После этого команда будет добавлена в панель быстрого доступа.

Куб положения
Находящийся в правом верхнем углу куб положения отображает текущее положение камеры (взгляда разработчика) относительно разрабатываемой модели. Чтобы менять положение взгляда (вращать модель), можно, зажав ЛКМ на кубе, перемещать мышь. Также это можно делать с помощью сочетания Shift+СКМ (СКМ-средняя кнопка мыши, колесико, его нужно зажать).
Перемещать модель поступательно вверх-вниз и вправо-влево можно, зажав СКМ. Изменять масштаб можно вращением СКМ.

Следует обратить внимание, что со временем интерфейс программы может немного изменяться. В частности, иконки команд могут выглядеть немного по-другому, а панель зависимостей эскизирования перенесена в панель быстрого доступа из панели эскизирования.
Создание простейшей модели
Разработка любой модели в данном режиме сводится к следующей последовательности действий:
Создание плоского эскиза – плоского рисунка, контура будущей модели (либо контура какого-либо элемента модели, например отверстия). Придание эскизу объема с помощью соответствующей операции вытягивания или вращения.
Рассмотрим эти действия на примере создания простейших моделей – куба и шара.
Куб
Создадим куб 50х50х50. Для создания куба необходимо создать эскиз квадрата, а затем вытянуть его (эскиз), придав ему объем.
Для создания эскиза квадрата необходимо выбрать команду «Create Sketch» в панели SKETCH.
А затем выбрать любую из трех плоскостей, доступных для эскизирования по умолчанию.

Будет выполнен переход в режим эскизирования.

Следует обратить внимание на панель SKETCH PALLETE (SP), появившуюся в правой части экрана (панель эскизирования). В этой панели можно настраивать параметры эскизирования, а также давать зависимости между некоторыми элементами, такие как: зависимость принадлежности, коллинеарности, концентричности, параллельности, перпендикулярности, горизонтальности/вертикальности, касательности и т.д.

С принципом действия этих зависимостей можно ознакомиться, создавая простые объекты, вроде отрезков или окружностей, и накладывая на них соответствующие зависимости.
Для создания квадрата необходимо выбрать команду «Rectangle->2- Point Rectangle», либо вручную прорисовать 4 отрезка, выбрав команду «Line».

Рассмотрим подробнее первый случай. В качестве опорной точки эскиза (откуда начинаем рисовать элементы) рекомендуется выбрать начало координат.
Вторую точку поставим произвольно.

Обратим внимание, что на появившемся контуре у элементов (отрезков) уже есть связи (зависимости). В частности, значки
и 
говорят о том, что соответствующий отрезок строго горизонтален/вертикален (и как бы его не пытались перевернуть, он не изменит своего пространственного положения). А при щелчке мыши по углу квадрата можно увидеть зависимость совмещения (принадлежности)
точек двух отрезков.
Зависимости можно удалять, выделив и нажав клавишу «Delete». В этом случае ограничения, накладываемые зависимостью, будут сняты.
Созданный прямоугольник в данный момент имеет произвольные размеры. Контур прямоугольника можно изменять, потянув ЛКМ за грани прямоугольника или его углы.
Необходимо ОБЯЗАТЕЛЬНО зафиксировать размеры прямоугольника. Если не фиксировать размеры эскизов, а просто строить их по сетке на глаз, то в процессе создания модели эскиз может «съехать», и тогда модель будет создана искаженной.
Чтобы зафиксировать размеры эскиза, необходимо воспользоваться командой «Sketch Dimension»: 
Данная команда используется для нанесения ВСЕХ размеров на эскизе – линейных, радиальных, угловых.
В случае нанесения размеров квадрата необходимо указать линейные размеры – длину его стороны. Для этого необходимо нажать на кнопку нанесения размеров и: а) либо нажать на отрезок, длину которого хотим задать, б) либо последовательно указать два параллельных отрезка, расстояние между которыми хотим задать, в) либо последовательно указать две точки, расстояния между которыми хотим задать. Далее необходимо вынести курсор в сторону, либо вверх или вниз, до появления соответствующей размерной линии, и нажать еще раз ЛКМ, чтобы появилась возможность задать размер. После чего можно задать размер, нажав клавишу Enter.

Обратим внимание, что после фиксации размеров всех геометрических элементов они становятся черными, что говорит об их зафиксированности.
Размеры не являются геометрическими объектами, они нужны только для фиксации и не участвуют в дальнейшей работе по созданию объемных тел.
После нанесения всех размеров и зависимостей, то есть после завершения эскиза, необходимо в панели эскизирования нажать на кнопку «Stop Sketch».
Следует обратить внимание, что рисуемый эскиз ОБЯЗАТЕЛЬНО должен быть замкнут. Иначе будет невозможно продолжить работу. Частой ошибкой на этапе эскизирования

бывает незамкнутость контура (причем, до замыкания контура может не хватать всего нескольких микрометров, а этого может быть не видно при обычном масштабе), что приводит к невозможности его вытягивания или вращения.
В результате, получится видимый эскиз квадрата на плоскости.
Чтобы из этого эскиза получился куб, эскизу необходимо придать объем. Делается это с помощью команды «Extrude» **на панели «CREATE».
Выбрав команду «Extrude», необходимо указать замкнутый контур (контуры) для вытягивания.
В появившемся окне можно настроить следующие параметры вытягивания.
Profile. При нажатии на стрелочку, можно перейти к выбору контуров для вытягивания. При этом, допустимо выбрать несколько замкнутых контуров (если в эскизе их несколько).
Start. Выбор плоскости, от которой идет вытягивание эскиза. Значение данного параметра чаще всего оставляется заданным по умолчанию. Direction. Выбор направления вытягивания эскиза. Можно вытягивать в одну сторону, в обе одновременно и симметрично, или в обе на разные расстояния. Если эскиз нужно вытянуть только в противоположную сторону, необходимо указать отрицательные значения в параметре «Distance».
Extent. Ограничения на вытягивание эскиза. Эскиз можно вытягивать на некоторое расстояние, до ближайшего объекта (в данном случае объекты отсутствуют), и насквозь (в случае вытягивания/выдавливания сквозного отверстия; вытянуть объемное тело насквозь не получится).
Distance. Выбор расстояния, на которое происходит вытягивание. Данный параметр заполняется, если в предыдущем параметре было выбрано одноименное значение – Distance (вытягивание на определенное расстояние).
Taper Angle. Угол вытяжки. Значение параметра по умолчанию - 0 градусов. Изменяя этот угол, можно вытягивать по направлению, не перпендикулярному плоскости эскиза. Таким образом, можно получать пирамиды, конусы, и т.д.
Operation. Выбор режима операции «Extrude». Данный параметр предлагает выбрать между созданием нового объемного тела и вырезанием части уже существующего.
Выставив значение параметра «Distance», равное 50, и нажав «ОК», получим куб.

На любой из плоских граней созданного тела можно создавать эскизы для последующего редактирования модели. Создадим сквозное отверстие, диаметром 20 мм, на одной из граней.
Для этого создадим на выбранной грани эскиз, построив окружность по центру и точке (Circle->Center Diameter Circle).

Затем необходимо зафиксировать размер окружности, а также ее пространственное положение. Положение окружности задается положением ее центра. Чтобы задать его, необходимо, выбрав команду задания размеров, указать последовательно на точку-центр окружности, а затем на какой-либо объект, расстояние до которого хотим задать (в данном случае до стороны квадрата).

Размеры окружностей и дуг наносятся просто – необходимо выбрать команду, а затем просто указать на нужный объект и отвести курсор в сторону, после этого задав размер.

Следует обратить внимание, когда выбирается какая-либо команда (нанесение размеров, создание геометрических объектов и т.д.), стандартный курсор меняет свой вид, переходя в соответствующий специальный режим из обзорного. Однако, передвигать положение размеров (для удобства) необходимо в обзорном режиме, и поэтому необходимо предварительно с помощью клавиши «ESC» выйти из специального режима.
Далее необходимо выйти из режима эскизирования. Затем нажав «Extrude», выбрать круг. Далее настроить панель как на рисунке.

Обратим внимание, что Operation автоматически меняется на Cut (вырезать). Если этого не произошло, можно параметр изменить вручную. В результате, получаем куб со сквозным отверстием на одной из граней. Также следует обратить внимание, что можно было сразу на этапе создания эскиза квадрата учесть отверстие, нарисовав его на том же эскизе, а затем во время операции вытягивания выбрать контур для выдавливания без круга.

Сделать это можно и на текущем этапе, удалив операцию вытягивания окружности и эскиз с окружностью, зайдя в режим редактирования ранее созданного эскиза и начертив там окружность. Чтобы зайти в режим редактирования какой-либо операции или эскиза, необходимо в панели истории создания модели щелкнуть ПКМ по соответствующей операции и выбрать команду «Edit».

Можно пользоваться операциями дополнительного изменения во вкладке MODIFY. Например, выбрав команду «Fillet», можно скруглить все ребра (необходимо последовательно кликнуть на скругляемые ребра, а также задать радиус скругления).

Шар
Создание шара аналогично созданию куба, за тем исключением, что при формировании модели будет применяться другая операция объема. Прежде всего необходимо создать эскиз, на котором с помощью операции дуги по центру и двум точкам (Arc->Center Point Arc, центр в начале координат) будет прорисована дуга. Ее концы будут соединены отрезком
(для замыкания контура и создания оси вращения).

Далее необходимо выйти из режима эскизирования, и выбрать команду «Revolve» из раздела «CREATE». Данная операция является операцией создания объема вращением, поэтому необходимо выбрать вращаемый контур и ось вращения.
В появившемся окне представлены аналогичные окну вытягивания параметры:
Profile. Выбор контура вращения.
Axis. Выбор оси вращения.
Type. Выбор степени (угла) поворота. Можно вращать на заданный угол, до какого-либо объекта, либо на полный оборот.
Параметры Direction и Operation аналогичны соответствующим в «Extrude».


В результате выполнения операции получается сфера.

Работа с чертежами
После тренировки в создании простейших моделей в САПР для усвоения материала рекомендуется рассмотреть практические задания по распознаванию чертежей и построению по ним 3D моделей. Прежде всего, необходимо уяснить смысл и необходимость построения чертежей, а затем в рамках нескольких учебных примеров разобрать принципы построения и распознавания чертежей, а также принцип построения по ним 3D моделей.

Одно из главных правил чертежей – чертеж должен описывать деталь настолько подробно, чтобы можно было однозначно представить ее в виде 3D-модели. Но чертеж также не должен быть избыточным. То есть информации должно быть ровно столько, сколько нужно. Это значит, что некоторым деталям достаточно всего 2-х видов (вместо 3-х стандартных видов).
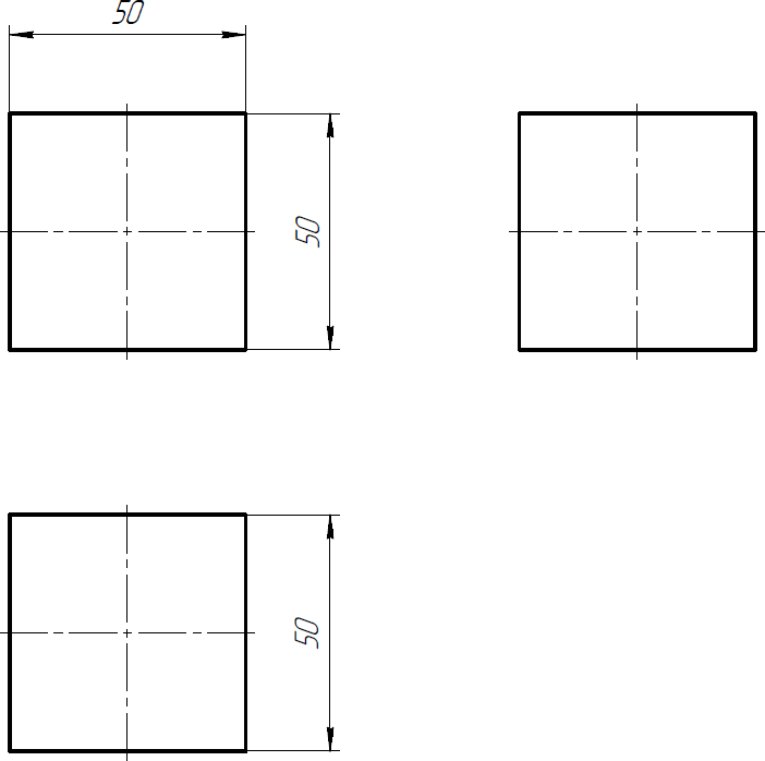
Например, рассмотрим чертеж в трех стандартных видах ранее созданного куба. Выглядеть он будет как 3 квадрата.

Квадраты показывают виды на куб с различных сторон (спереди, сверху и сбоку). Во всех трех проекциях куб отображается в квадрат. Это значит, что один из видов избыточен (т.е. для куба достаточно двух видов). На первый взгляд, посмотрев на чертеж, не понятно зачем он нужен? И зачем вообще нужно столько видов? Ведь достаточно будет начертить всего один вид – квадрат, по которому будет ясно, что это чертеж куба.
Однако, в случае более сложных деталей – например, куба с вырезом или куба с выступом, необходимо представить уже три вида, поскольку двух будет недостаточно. А по одному из видов вообще можно перепутать 2 детали между собой.
В качестве практической работы можно рассмотреть несколько представленных ниже чертежей и попытаться построить по ним 3D модели:
Полусфера со сферическим вырезом:

Пирамида:

Куб с пирамидальным вырезом:

Полусфера со сферическим и цилиндрическим вырезами:

Шестигранная призма с вырезами:

Создание моделей деталей манипулятора
После ознакомления с основными функциями САПР и принципами работы в системе целесообразно начать проектирование корпусных деталей манипулятора.
В данном примере будет рассмотрено создание нескольких деталей для 3D печатного манипулятора с угловой кинематикой. Поскольку сам манипуляционный робот состоит из большого количества деталей, то рассматривать процесс создания всех деталей в рамках данного пособия не представляется возможным. Исходные файлы рассматриваемых здесь примеров могут быть скачаны с официального сайта ( appliedrobotics.ru ) из раздела «Учебные материалы».
Элементы конструкции спроектированы для последующего изготовления методом 3D печати на 3D принтере.
Создание модели основания
Пример итоговой модели:

- Проектируем эскиз контура.

- Вытягиваем эскиз на 6 мм (Extrude), создаём объем.

- Делаем отверстия 3.4 мм (Hole) (используем эскиз из п.1).

- Чертим углубления под гайку. Эскизируем только верхнюю половину. Нижнюю строим с помощью инструмента Mirror.

- Выдавливаем эскиз на 4 мм (Extrude).

- Выдавливаем отверстия (Hole) (используем эскиз п.4).

- Отверстие по центру.

- Скругление 10 мм по всей боковой грани.

Создание модели корпуса
- Проектируем эскиз, согласно размерам на рисунке.

- Рабочую плоскость оформляем с помощью инструмента Offset Plane, параллельно нижней детали с отступом 48.75 от эскиза (из пункта 1).

- Создаём эскиз на созданной плоскости с применением проецирования геометрии от эскиза созданного ранее (в пункте 1), проецирование геометрии будет обозначаться на эскизе фиолетовым цветом.

- Делаем LOFT, выбрав замкнутые контуры из первого и второго эскиза, как показано на картинке.

- Создаём параллельную плоскость, с помощью инструмента Offset Plane, от внутренней плоскости со сдвигом на 2 мм.

- Делаем эскиз на созданной плоскости (пункт 5), согласно размерам на рисунке.

- Выдавливаем замкнутый контур эскиза насквозь, чтобы получилось углубление в детали.

- Делаем зеркальное отражение выдавливания (пункт 7), выбрав в качестве Mirror Plane основную плоскость, параллельную внутренним стенкам детали.

- Создаём параллельную плоскость, с помощью инструмента Offset Plane, со смещением на 2 мм.

- Делаем эскиз на ранее созданной плоскости.

- Создаём параллельную плоскость, с помощью инструмента Offset Plane, со смещением на 33.35 мм.

- Делаем эскиз на ранее созданной плоскости, вначале рисуем левую часть эскиза, после делаем отзеркаливание её при помощи инструмента Mirror.

- Делаем LOFT, выбрав эскизы (из пунктов 10 и 12).

- Создаём эскиз, как показано на картинке.

15. Делаем насквозь отверстия с помощью инструмента Hole.

- Создаём эскиз проецируя чертеж, как показано на рисунке.

- Выдавливаем насквозь замкнутый контур эскиза, с помощью инструмента Extrude.

- Делаем скругления инструментом Fillet.

- Создаём эскиз для отверстий на верхней плоскости детали.

- Создаём сквозные отверстия по точкам из эскиза (из пункта 19).

- Создаём эскиз, на плоскости, как показано на картинке.


- Создаём ступенчатые отверстия со сквозным выходом, по точкам по эскиза. Для этого используем инструмент Hole (из пункта 21).

- При помощи инструмента Mirror создаем зеркальное отражение отверстий (из пункта 22), выбрав в качестве Mirror Plane основную плоскость, параллельную внутренним стенкам детали.

Создание модели детали 1 поворотного звена
- Проектируем эскиз, согласно размерам на рисунке.

- Выдавливаем эскиз.

- Создаём эскиз.

- Выдавливаем эскиз.

- Делаем отверстие по центру детали, выбрав сначала плоскость для отверстия, потом окружность, в центре которой нужно сделать отверстие.

- Создаём эскиз, как показано на рисунке.

- Вытягиваем замкнутый контур эскиза, как показано на рисунке.

- Делаем скругление по периметру выдавленной части детали.

- Создаём круговой массив из выдавливания и скругления (пункты 8 и 7), выбрав в качестве оси вращения ось Y.

- Создаём эскиз.

- Делаем отверстия по точкам из эскиза (из пункта 10).

Создание модели детали 2 поворотного звена
- Проектирование эскиза с проецированием геометрии из предыдущей детали, 4 выступающих “Шипа”.

- Вытягиваем из эскиза часть, как показано на картинке.

- Создаём эскиз на верхней плоскости детали, с проецированием геометрии от прошлого эскиза (пункт 1) и инструментом «Смещение» сдвигаем линию вправо на 0.4 мм.

- Создаём рабочую плоскость, на расстоянии 14.5 мм от верхней плоскости детали.

- Создаём эскиз на новой плоскости, с использованием проецирования геометрии эскиза (из пункта 3), как показано на рисунке.

- Создаём LOFT, выбрав замкнутые области из эскизов, созданных в пунктах 5 и 3, как показано на рисунке.

- Создаём рабочую плоскость со смещением от плоскости на 2 мм.

- Создаём рабочую плоскость со смещением от плоскости на 2 мм.

- Выдавливаем эллипсы (инструмент ellipse) из эскиза (из пункта 8).

- Создаём отверстия по центру эллипсов из эскиза, созданного в пункте 8.

- Создаём отверстие по точке в эскизе, созданном в пункте 1, как показано на рисунке.

- Создаём отверстие по точке в эскизе, созданном в пункте 1, как показано на рисунке.

- Делаем зеркальное отражение элементов (из пунктов 9, 10, 11).

- Делаем зеркальное отражение элементов (из пунктов 6, 9, 10, 11, 12).

- Вытягиваем часть от первого эскиза детали, как показано на картинке.


- Делаем скругление.

Создание модели детали одного из звеньев
- Создаём эскиз, согласно размерам на рисунке.

- Вытягиваем эскиз, как показано на рисунке.

- Создаём ступенчатые отверстия по точкам из эскиза (из пункта 1).

- Создаём эскиз на обратной стороне детали.

- Создаём параллельную область с отступом на 19 мм, как показано на рисунке.

- Создаём эскиз на новой плоскости с проецированием геометрии, от эскиза из пункта 4.

- Создаём 4 дополнительных плоскости по аналогии:

Чтобы получилось вот так:

- Создаём 4 эскиза-направляющих для LOFT, на ранее созданных плоскостях (пункт 4).

- Делаем LOFT с созданием нового тела и указанием всех четырёх направляющих (пункт 8).

- Создаём эскиз, как показано на рисунке:

- Вытягиваем эскиз на 2 мм.

- Создаём дополнительную плоскость со смещением 5.6 мм, как показано на рисунке.

- Разрезаем модель инструментом split body, в качестве тела используем тело, созданное в пункте 9, в качестве инструмента разреза используем плоскость из пункта 12.

- Создаём эскиз.

- Выдавливаем эскиз на 4.2 мм.

- Применяем инструмент shell для создания оболочки из тела, получившееся в результате выполнения пунктов 9 и 13, выбрав верхнюю и нижнюю плоскость в качестве исключения, чтобы получилось как на рисунке, толщина оболочки 1.4 мм.

- Создаём эскиз, как показано на рисунке:

- Выдавливаем эскиз из нижней детали.

- Соединяем (комбинируем) все 3 тела в одно.

- Создаём эскиз, с использованием проецирования геометрии, как показано на рисунке.

- Выдавливаем замкнутые части эскиза, как на рисунке.

- Создаём ступенчатые отверстия по точкам из эскиза, созданного в пункте 1.

- Создаём эскиз в получившемся углублении, на верхней части детали.

- Создаём отверстия по точкам из эскиза, созданного в пункте 23.

- Создаём скругление в 2мм, как показано на рисунке:

Ответная деталь создаётся при помощи копирования детали и вытягивания шипа.
